How Can We Help?
Search for answers or browse our help center.
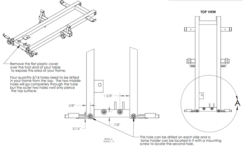
HA90W Wound Care – Adding holes in frame for Luxo Lamp holders
The four holes pictured represent both the right & left hand mounting positions for the Luxo lamp holder.
Parts Needed:
1. Round spacers, part M596 (4) 2. 1/4-20 nuts (4)
3. Lamp holder(1 or 2)
4. Screws, 1/4-20 x 2″ (2)
5. Screws, 1/4-20 x 3″ (2)

