How Can We Help?
Search for answers or browse our help center.
-
Anatomotor
- Add a Top Pad
- Add Heat and Vibration
- Add Patient Control Switch
- Adding lubricant to 924 gear box
- Adjusting the microswitch to stop at either end
- Adjusting variable speed on circuit board
- Applying traction with the older style Cervical Device
- Back roller won't stay up
- General maintenance
- How to Add a Vibration Feature to an Anatomotor Table
- How to adjust belt tension on motor
- How to Adjust the Belt Tension
- How to tighten back roller spur gear
- Installing Rollers into the Gut Box
- Instructions for the New Cervical Traction Device
- List of Anatomotor Accessories
- Remove the table top
- Replace Belt
- Replace Motor Brushes
- Replace On/Off Switch
- Replace Roller Handle
- Replace Switch
- Replace the Gearbox
- Replace Timer
- Replace Variable Speed Motor
- Replacing Black Cervical Lumbar Switch
- Tighten the Roller Spur Gear
- Traction Control Unit- Calibration instructions
- Troubleshooting the table top will not move with a tilt top
- Troubleshooting the top not stopping with a variable speed motor
- Show all articles (15) Collapse Articles
Print
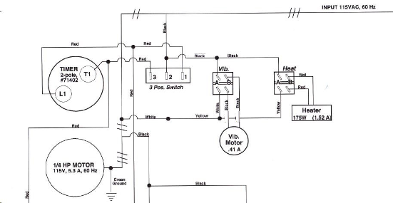
How to Add a Vibration Feature to an Anatomotor Table

