How Can We Help?
Search for answers or browse our help center.
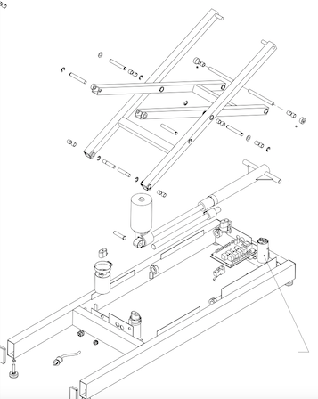
Troubleshooting Lift Back capacitor

Lift Back capacitor is located at foot end of base.
The two outside wires on the capacitor go to the foot pedal. Switch the two outside wires to see if the actuator will respond in the opposite direction than before.